Équipe Alai – Daoust

780 Rue Boissy, Saint-Lambert

1 699 000 $

MLS : 9840934

Split-level for sale

Listed on 13/02/2026

Broker Information

Sylvia Alai

Sylvia Alai

Tel : 514-808-8419

Welcome to this spacious and very bright split-level home located on a beautiful tree-lined street, just a short walk from Houde Park. Offering generous room sizes and multiple living areas, this property is ideal for a family looking to establish themselves in St-Lambert. The landscaping enhances the home's charm, with abundant perennial (vivaces) gardens in both the front and back yards--perfect for easy, low-maintenance yet beautiful gardening throughout the seasons. The backyard is a true oasis--private, peaceful, and designed for relaxation--with a fenced pool, dining area, and plenty of space to unwind.
13 pièces
4 (1) chambres
2 salles de bain
1 salles d’eau
Construit en 1969
266.6 MC
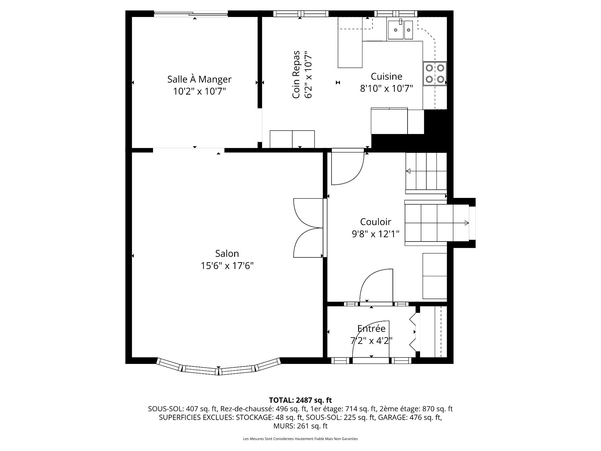
Rooms
Level Room Dimensions
Ground floor Entrance hall 9.2x11 P
Ground floor Living room 15.7x16.7 P
Ground floor SAM 10.11x11.1 P
Ground floor Kitchen 14.9x11 P
Garden level Family room 15x24 P
Garden level Washroom 9.6x3.4 P
2nd floor Bedroom 13.3x11 P
2nd floor Bedroom 11x11.6 P
2nd floor Bathroom 4.11x9.10 P
2nd floor Bathroom 5.4x8.1 P
2nd floor Primary bedroom 15.3x15 P
Basement Laundry room 13.8x12.9 P
Basement Bedroom 11.8x18.11 P
Expenses
TypeAmount
Municipal taxes 9 277 $
School taxes 852 $
Addendum

Main Floor
The main floor features a large, sun-filled living room and dining room with hardwood floors. The dining room is enhanced by patio doors that open directly onto the backyard, creating an ideal flow for entertaining. A bright eat-in kitchen completes this level.

Second Floor
A few stairs up lead to three well-sized bedrooms. The primary bedroom includes an ensuite bathroom, a large walk-in closet, and patio doors leading to a private balcony overlooking the tranquil backyard. A second bathroom connects directly to the ensuite in a practical shared layout.

Garen level
A few stairs down from the main living area is a spacious family room with a fireplace and direct access to the backyard through patio doors. This level also includes a powder room and access to the double garage.

Basement
The home continues with a high-ceiling basement offering an additional bedroom, a large laundry room, and generous storage space.

This is the perfect home for a family seeking brightness, space, comfort, and room for everyone to enjoy both private areas and inviting common spaces for gatherings and cozy movie nights--inside and out.

Mortgage Calculator

This online tool is provided for informational purposes only. We cannot guarantee that the calculations will apply to your specific situation or be accurate.

0.00 $